22㎡小小宅,打通阳台后,整个房子完全变了个样
整个房子完全变了个样 》,该文章已被转发很多次了,你也来转一下吧。
正文开始:
布局、动线、收纳
三个与房子相关
又常常被老生常谈的话题
对于小宅的设计,更是重要
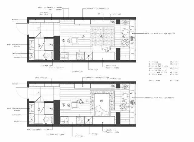
△平面布局细节图
这栋22㎡小房子,来自于俄罗斯,整体的设计由当地的设计师Andrey Barinov完成。小户型的家,功能间的布局是最为重要的部分,接着便是行走动线的设计···
打通原先的阳台
并保留了卫生间处的隔断墙
玄关处利用矮柜
来丰富家中的储物空间
△玄关处的收纳设计
对于骑行一族而言
车也是极其占据空间的物体
利用金属横杆
将车本身架高,脱离地面的空间
并在矮柜的基础上
增加顶部的吊柜空间
将其设计成了用来置物的大书架
被外置的卫生间
墙面以黑色的瓷砖打底
镜台与洗脸池、收纳柜
放于墙面的一边,其余则设计在侧面
被加入储物功能的镜面
虽然看似加厚了很多
但丁点都不影响镜面的视觉
同时将洗衣机藏于
洗脸池下的储物柜里
实现了一物两用的多功能
洗浴间与马桶区
被玻璃隔断,有效地隔离开
并在马桶的背景墙上
再增加收纳高柜的空间
让卫生间的物品,有更多的藏身之地
开放式的厨房
与客厅、餐厅三者之间融为一体
共享同一个黑色橱柜
没有油烟机
那是被完全隐藏在木柜之中
嵌入式的灯光设计
还能有效地节约被灯饰的占用面积
紧挨着厨台的餐桌
就像是一个小小的课桌
但完全够平时在家的生活
客厅里,最传统的布置
单人沙发再搭配电视机
背后用隔板来增加储物的空间
卧房与客厅,两者之间
其实是一个重叠的组合
彼此之间,可以自由地调整切换
沙发还是原来的沙发
但木饰面背景墙的部分
却是可以变身的角色
△卧房与沙发间的切换
从墙面翻折开
丝毫不影响家中的整体布局
也没有让动线,变得拥挤不堪
被褥、睡枕
这些平时用不着的物件
全都可以放在最上层的吊柜空间
与墙体之间剩余的部分
搭配落地灯
利用纯白的木格子
将这里变成了强有力的床头储物间
被打通后的阳台
新安装的木饰面矮柜
脚下即是储物空间
而对于桌面,则是家中最宽敞的办公桌
这就是22㎡小家
从一个被低估的拥挤之地
变成了宜居的小天地
····
------------------------------------------------------------
追求品味,乐在生活
创意无限,尽在玛薇
免责声明:以上内容由农业探索笔记编辑,图文来源于公众平台及网络,内容仅供各位学习参考,如有侵犯版权请告知,我们将及时删除!
关注二维码,有惊喜喔
![]()
- 打通商保后,医生集团能从高端医疗变成大众医疗吗?
- 心血管支架大夫要失业了,打通血管血栓绝密配方!
- “乡愁”的船票驶到了头
- 五台方言┃下五台后生酒桌上骂群主,绝了!
- 新疆有一群小小少年,他们的梦想是足球
- 杨幂怀二胎,刘恺威已默认,小小糯米将要出生!
- 最后90米排污管道打通了
- 00后的崛起...【恰恰】
- 茄汁鹌鹑蛋
- 三区联动畅通“城南金三角” 年底前天府五街断头路打通
