40平的小房子,也能拥有大房子的待遇

也能拥有大房子的待遇”这篇文章很久了,是否有种踏破铁鞋无觅处,得来全不费功夫的感脚呢?

正文开始:

或许我们根本不需要大房子!

40m2 的小家

也能拥有大房子的待遇

阳台、宽敞的储物

高逼格的卧房与工作间

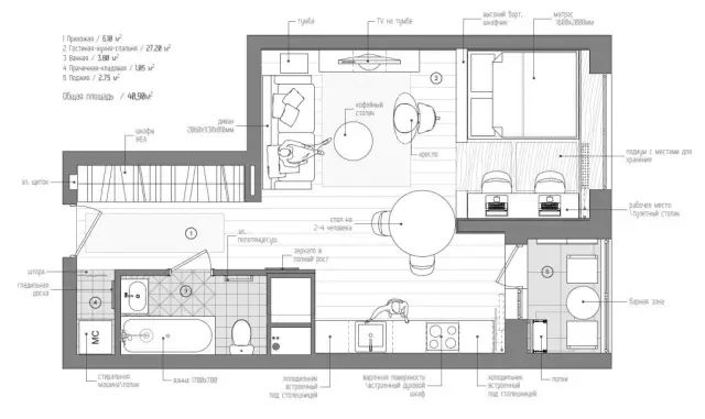
40m2小宅平面图40平的小房子,也能拥有大房子的待遇

40平的小房子,也能拥有大房子的待遇


这套小小的一居室

是一对小夫妻,未来几年的临时住处


设计工作由俄罗斯工作室

INT2architecture完成


重新规划整个家的使用

就从玄关处的储物设计开始


40平的小房子,也能拥有大房子的待遇


玄关走道,选择隐形门设计

直射的筒灯

改变了原先的灯光布局


清新范的小客厅

灰、白、粉的新搭配


40平的小房子,也能拥有大房子的待遇


选择了开放式的小厨房

置物柜与隔板相结合的收纳方式


不是大众款的小白砖

对于墙裙的设计

选择了三角花砖的搭配方式


40平的小房子,也能拥有大房子的待遇


每一面墙

设计者都赋予了它独特的一面


有些是背景装饰

而有些却是生活真实的需求

比如这一颗颗小菜


餐厅的小圆桌

就放在青菜墙的位置


40平的小房子,也能拥有大房子的待遇


大白墙被黑板代替

不仅有青葱小菜


连厨房的各种作料

都被当做了装饰物,挂在了墙面之上


40平的小房子,也能拥有大房子的待遇


把卧房稍微抬高

吊顶的部分,用木饰面装饰


没有占据空间的大衣橱

将墙面的剩余空间,反而让给了工作间


40平的小房子,也能拥有大房子的待遇


简直布置的工作间

花色的墙纸,代替了粗糙的木板


左右对称的的吊灯

也可以用作卧房的照明工具


40平的小房子,也能拥有大房子的待遇


既是床头柜

也是与客厅之间的小隔断


垫上一层床垫

就有了舒适的卧房

抬高的木地板

下方的面积,全都用作储物


40平的小房子,也能拥有大房子的待遇


精致的生活

从阳台就可以看出一二


一个圆桌,两把座椅

这里就变成了阳光小书房


40平的小房子,也能拥有大房子的待遇

40平的小房子,也能拥有大房子的待遇


洗浴间的小白砖

也被置入了橄榄绿的组合砖


小小的洗手间

也能放得下,自己喜爱的大浴缸


40平的小房子,也能拥有大房子的待遇

40平的小房子,也能拥有大房子的待遇40平的小房子,也能拥有大房子的待遇