一个白色房子,一个生长的家 老房新生 里弄里的私宅改造,上海

一个生长的家 老房新生 里弄里的私宅改造

正文开始:

来自 睿集设计 对gooood的分享。


在上海一个普通旧里弄之中,RIGI睿集设计了这个三层白色的住宅。


▼住宅位于上海一个普通的旧里弄中

一个白色房子,一个生长的家 老房新生    里弄里的私宅改造,上海


上海有很多类似的老房,这并不是一个拔地而起的新建筑,它位于一个自然的状态形成的街区,这些房子承载了上海的记忆。


▼住宅与老房相依一个白色房子,一个生长的家 老房新生    里弄里的私宅改造,上海

一个白色房子,一个生长的家 老房新生    里弄里的私宅改造,上海


原始建筑1947年竣工,由三层组成。面宽5.5米,深度约15.2米。南北朝向,南北各有入口,由于内部复杂隔间很多,深度也很深,整体室内的采光较很差。由于建筑修建时间较早,建筑局部构造有修复结构需求的可能,因此我们为建筑整体做了加固设计,并统一了整个建筑的层高,将原来位于北侧的楼梯全部拆除, 将天窗和楼梯设置为建筑的中心,重新塑造了整个三层的逻辑和形态,我们将钢板楼梯穿孔之后,可以起到透光的作用,楼梯围绕自然光天井自一楼起循序向上,让整个家都围绕着天光垂直的延展。


▼住宅入口

一个白色房子,一个生长的家 老房新生    里弄里的私宅改造,上海


▼将位于北侧的楼梯全部拆除, 将天窗和楼梯设置为建筑的中心

一个白色房子,一个生长的家 老房新生    里弄里的私宅改造,上海


RIGI在一楼的设计中延展了半开放的区域,模糊了室内外的界限,原来孤立的院落和三层空间,在改造后有了新的对话关系,半户外阳光空间,为客厅空间增加了足够温暖的气息。阳光,植物,室内,室外,模糊的场景界限让空间和生活场景中随意切换,我们在院子中预留了一个树洞,春天的时候种上的树木,随着这个家,孩子一起成长,时间也是设计的一部分。


▼半开放的区域模糊了室内外的界限

一个白色房子,一个生长的家 老房新生    里弄里的私宅改造,上海

一个白色房子,一个生长的家 老房新生    里弄里的私宅改造,上海

一个白色房子,一个生长的家 老房新生    里弄里的私宅改造,上海


▼院子里的树洞

一个白色房子,一个生长的家 老房新生    里弄里的私宅改造,上海


阳光房客厅餐厅与厨房在一楼的设计中形成一个完整空间,这是一家人在一起分享最多的空间,不管是父母孩子还是老人,我们希望这个空间是属于生活之中的每一个场景,而不是被功能所定义的,我们设计了的一整面模块化的家具墙面,我们叫它Life board, 这面墙搭配可随意装配组合的配件,随着主人的生活慢慢的变化,在这个角度上我们更希望这些设计未来的形式是通过每一天的生活形成的。


▼阳光客厅与餐厅形成完整空间

一个白色房子,一个生长的家 老房新生    里弄里的私宅改造,上海

一个白色房子,一个生长的家 老房新生    里弄里的私宅改造,上海

一个白色房子,一个生长的家 老房新生    里弄里的私宅改造,上海

一个白色房子,一个生长的家 老房新生    里弄里的私宅改造,上海


▼模块化的家具墙面可随意装配组合的配件

一个白色房子,一个生长的家 老房新生    里弄里的私宅改造,上海


▼客厅

一个白色房子,一个生长的家 老房新生    里弄里的私宅改造,上海


二楼设计中将门和储藏空间隐藏在墙面中,创造了一个干净且完整的区域,在阳光充足的时候,这是一个很温暖的属于家的空间。


▼二楼门和储藏空间隐藏在墙面中

一个白色房子,一个生长的家 老房新生    里弄里的私宅改造,上海

一个白色房子,一个生长的家 老房新生    里弄里的私宅改造,上海


小朋友的床和书桌以及仓储我们用设计连接在一起,主人的小孩很喜欢这个房子,在楼梯爬上爬下,在院子里不停的玩耍,这也是我们设计的一个初衷,给这个孩子一个更大的世界,站在另一个维度去理解这个不停变化的世界。


▼小朋友的床和书桌以及仓储用设计连接在一起

一个白色房子,一个生长的家 老房新生    里弄里的私宅改造,上海

一个白色房子,一个生长的家 老房新生    里弄里的私宅改造,上海


由钢板楼梯围绕自然光天井自一楼起循序向上,可以看到我们改造过的天窗和垂直采光窗以及一个纯户外空间,这是改动最大的区域。整个建筑的源发点就是从阳光和垂直空间开始。主卧我们保留了原始建筑的坡顶结构,将衣帽间和卫生间统一在一个盒子之中,最大限度的保留了原始建筑的形态,并在本来并不大的空间中创造了新的关系。


▼主卧

一个白色房子,一个生长的家 老房新生    里弄里的私宅改造,上海

一个白色房子,一个生长的家 老房新生    里弄里的私宅改造,上海

一个白色房子,一个生长的家 老房新生    里弄里的私宅改造,上海


▼主卧/客卧洗手间

一个白色房子,一个生长的家 老房新生    里弄里的私宅改造,上海


我们想设计一些装载美好的东西的东西,生活之中并不常有大喜悦,那一些浅尝即止的小确幸填满了我们的生活,也许我们热爱的从来不是对好东西,奢侈家具的不断占有,我们需要的应该只是可以被创造,能完全自理的生活。看过这么多的家,唯一可以坚信的是人不能被固定的生活僵化,不论是房屋价值,还是所谓房屋风格。


▼楼梯间的明亮通透

一个白色房子,一个生长的家 老房新生    里弄里的私宅改造,上海

一个白色房子,一个生长的家 老房新生    里弄里的私宅改造,上海

一个白色房子,一个生长的家 老房新生    里弄里的私宅改造,上海

一个白色房子,一个生长的家 老房新生    里弄里的私宅改造,上海


房子并不代表家,家永远是属于自己的家人的地方。家承载了我们每一天的生活,这应该是一个容器,承载着我们的成长,经历和希望。而设计,应该是给生活更多的宽容。我们工作、生活着的这个城市并不完美,甚至现在门外还有乱停的车和很多垃圾,但这并不妨碍我们在这里设计一个温暖的家。这是一个70年的房子,很多年见证了很多的人,这一刻,它好像新生了。这就是我们生活的意义,要更好。


▼住宅里的美好生活

一个白色房子,一个生长的家 老房新生    里弄里的私宅改造,上海一个白色房子,一个生长的家 老房新生    里弄里的私宅改造,上海一个白色房子,一个生长的家 老房新生    里弄里的私宅改造,上海


▼剖透视

一个白色房子,一个生长的家 老房新生    里弄里的私宅改造,上海



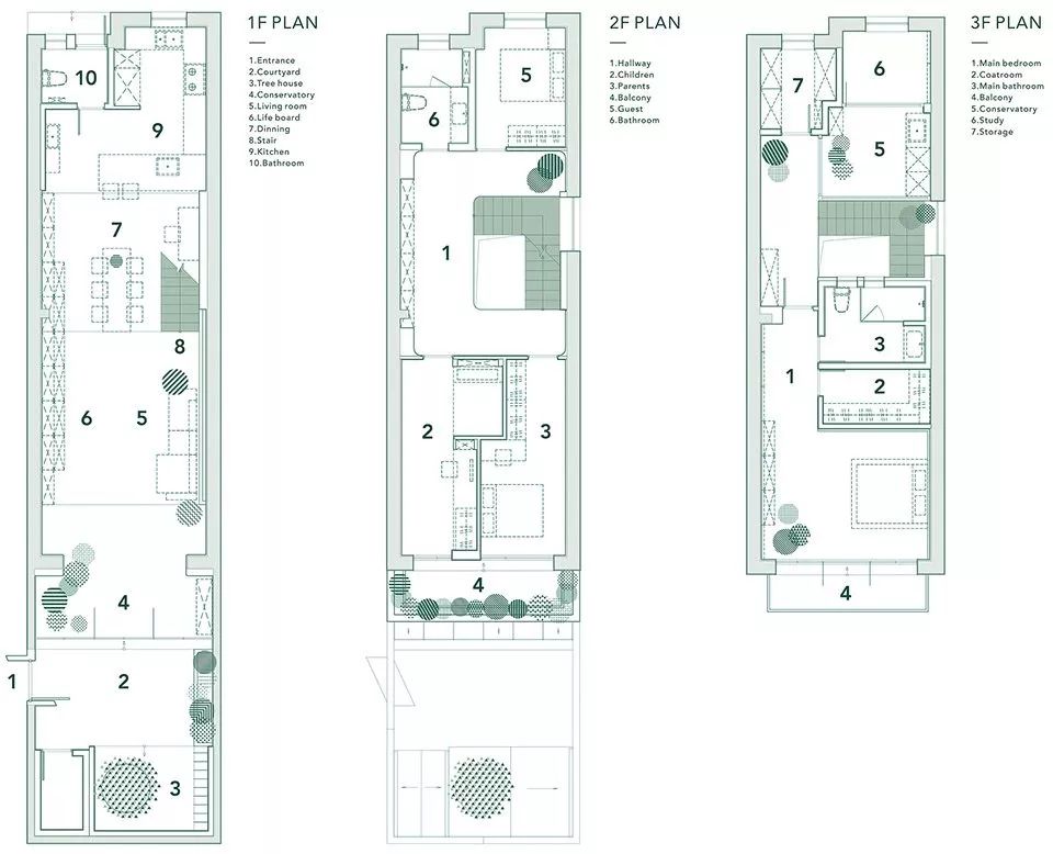
▼平面图

一个白色房子,一个生长的家 老房新生    里弄里的私宅改造,上海


▼改造前后对比图

一个白色房子,一个生长的家 老房新生    里弄里的私宅改造,上海



作品名称:一个白色房子,一个生长的家

所属类别:住宅
主设计师:刘恺 
设计师:杨骏一 
摄影师:田方方
案例面积:240㎡
主要材料:金属板 烤漆 毛毡 艺术涂料 冲孔板
设计说明撰写人:刘恺
设计时间:2016年5月
建成时间:2017年11月
建成地点:上海

 





350万粉丝钟爱的

gooood


网站 www.gooood.hk

微信 gooood谷德设计网


一个白色房子,一个生长的家 老房新生    里弄里的私宅改造,上海


建材、竞赛、推广、招聘、

投稿、项目对接等合作请联系:

gooood.contact@gmail.com



gooood 点击原文到网站看到更多